UNIVERSITY NURSING CLINIC: INTEGRATION, QUALITY AND SAFETY AS AN ACADEMIC STRATEGY
REGISTRO DOI: 10.69849/revistaft/dt10202512110941
Élida Maria da Silva1
Fabiana Silva Gomes2
Guilherme Soares Vieira3
Heloíza Lopes Dias Lago4
Laís Tavares dos Santos5
Orientador: José Luís Rodrigues Martins6
RESUMO
A Unidade de Assistência de Enfermagem constitui um espaço essencial para integrar ensino, pesquisa e extensão, qualificando a formação prática e ampliando o acesso aos cuidados de saúde. Entretanto, persistem desafios críticos relacionados à infraestrutura física e organizacional, à ausência de modelos consolidados de gestão e à fragilidade de indicadores para avaliar o impacto assistencial, pedagógico e social. Essas limitações comprometem a efetividade dos Procedimentos Operacionais Padrão (POPs), para a segurança do paciente, a padronização das práticas e a sustentabilidade institucional. Assim, embora configurem ambientes estratégicos, a consolidação dessas unidades depende de protocolos claros, governança clínica efetiva e monitoramento contínuo.
Palavras-chave: Unidade de Assistência de Enfermagem; Infraestrutura; Procedimentos Operacionais Padrão.
INTRODUÇÃO
As clínicas de enfermagem em universidades configuram-se como núcleos estratégicos de integração entre ensino, pesquisa e extensão, conciliando a formação prática de discentes com o atendimento às demandas de saúde da comunidade acadêmica.(Prestes Vargas et al., 2025) Nesses espaços, estudantes sob supervisão docente realizam consultas, procedimentos e ações educativas, adquirindo competências clínicas e interprofissionais enquanto contribuem para suprir lacunas assistenciais, como o acompanhamento de condições crônicas, vacinação e promoção da saúde.(Shakoor; Boelens; Yingling, 2023)
Essas unidades, frequentemente geridas por estudantes com apoio de docentes e enfermeiros, ampliam o acesso a serviços de saúde não apenas para a comunidade universitária, mas também para trabalhadores terceirizados e moradores do entorno, reafirmando a função social da universidade e fortalecendo a formação cidadã e profissional dos discentes.(Rupert et al., 2022) Estudos indicam que a consolidação desses serviços reduz desigualdades em saúde e reforça a vigilância voltada ao trabalhador, ampliando a proteção e o bem-estar no contexto acadêmico.(Krakov et al., 2023) Sob essa perspectiva, clínicas estudantis e programas de saúde ocupacional atuam como espaços de assistência qualificada e laboratórios de pesquisa aplicada, reafirmando a indissociabilidade entre ensino, pesquisa e extensão.(Ungvári et al., 2021)
A efetividade desses modelos depende da participação ativa das equipes de enfermagem na construção e validação de protocolos, garantindo coerência pedagógica, adesão profissional e fortalecimento institucional.(Pérez-Vergara et al., 2021)
Estudos apontam que clínicas lideradas por enfermeiros reduzem o tempo de espera, aumentam a satisfação dos usuários e contribuem para o descongestionamento de serviços médicos tradicionais.(Htay; Whitehead, 2021) Esses resultados, porém, só se sustentam quando há suporte organizacional consistente, definição clara de atribuições e equipes multiprofissionais integradas(Pu; Malik; Murray, 2024)
Nesse contexto, a Sistematização da Assistência de Enfermagem (SAE) torna-se essencial para qualificar o cuidado, padronizar intervenções e garantir rastreabilidade, especialmente em ambientes que conciliam assistência e gestão.(Silva et al., 2024) A sustentabilidade dessas clínicas também requer incorporação de tecnologias, cooperação multiprofissional e enfrentamento de desafios como sobrecarga administrativa e pressão produtivista.(Sirkka et al., 2025) A Educação Permanente em Saúde (EPS) surge como estratégia integradora, fortalecendo a articulação ensino-serviço por meio de capacitações e oficinas voltadas à padronização de condutas. (Oliveira Sousa et al., 2023)
Protocolos clínicos de enfermagem, como os aplicados na atenção primária, demonstram potencial para ampliar a resolutividade e a governança clínica em contextos universitários.(Silva et al., 2024) Além disso, programas de acreditação reforçam que planejamento, monitoramento e avaliação contínuos são determinantes para a qualidade percebida, enquanto a construção coletiva de modelos assistenciais favorece legitimidade e adesão profissional.(Pérez-Vergara et al., 2021) Apesar dos avanços, ainda há escassez de modelos organizacionais adaptados ao contexto brasileiro, mesmo diante de diretrizes do COFEN e da ANVISA, que reforçam a padronização e a segurança em ambientes de saúde.
Diante desse cenário, as clínicas universitárias de enfermagem reafirmam-se como espaços estratégicos de formação e cuidado, ao oferecerem experiências práticas aos estudantes e atendimento qualificado à comunidade acadêmica e colaboradores.(Hulme et al., 2024; Salum et al., 2020) Assim, este estudo tem como objetivo descrever e analisar criticamente o modelo assistencial e pedagógico de uma clínica universitária de enfermagem, considerando sua contribuição para a qualidade do cuidado, a formação discente e o atendimento à comunidade, bem como identificar barreiras, facilitadores e propor recomendações operacionais baseadas em evidências para promover segurança, efetividade e sustentabilidade do serviço.
METODOLOGIA
Trata-se de uma revisão integrativa da literatura, delineada para analisar a produção científica acerca das unidades de enfermagem universitárias. Esse método foi escolhido por permitir a síntese crítica do conhecimento existente, integrando resultados de diferentes delineamentos metodológicos e fornecendo uma compreensão abrangente do fenômeno investigado. (Dal et al., 2008)
A revisão seguiu as etapas sistematizadas descritas por (Whittemore Aprn; Knafl Elizabeth Gray Distinguished Professor; Knafl, 2020) e reafirmadas em estudos recentes (Cheraghi et al., 2023) (i) identificação da questão norteadora; (ii) busca em bases de dados; (iii) definição dos critérios de inclusão e exclusão; (iv) avaliação crítica dos estudos; (v) extração e análise dos dados; e (vi) síntese dos resultados.
O levantamento bibliográfico foi conduzido nas bases Web of Science, ScienceDirect, SciELO e PubMed, selecionadas por sua relevância na indexação de periódicos científicos revisados por pares. Foram utilizados descritores controlados Medical Subject Headings (MeSH) e Descritores em Ciências da Saúde (DeCS) em associação a termos livres em português e inglês, de modo a ampliar a sensibilidade da busca.
A revisão foi realizada entre agosto e setembro de 2025, em bases multidisciplinares e específicas. O operador booleano “OR” foi usado para agrupar os sinônimos de cada termo, e os termos foram organizados em blocos e conectados pelo operador booleano “AND” para completar a estratégia de pesquisa (Tabela 1). As palavras-chave da pesquisa consistiram em três blocos relacionados aos seguintes termos orientadores: “University Nursing Clinics”, “Clinical Protocols/Standard Operating Procedures” e “Health Outcomes and Patient Safety”.
Tabela 1 – Estratégia de Busca em Bases de Dados: Blocos Temáticos e Palavras-Chave Utilizadas
| Blocks | Keywords used |
| #1 – University nursing clinics and student/nurse-led services | “student-run clinic” OR “student-led clinic” OR “nurse-led clinic” OR “university clinic” OR “teaching clinic” OR “academic nursing clinic” OR “student-managed clinic” OR “school health service” OR “nursing school office” OR “clínica universitária” OR “clínica de enfermagem” OR “unidade de assistência de enfermagem” OR “serviços de saúde escola” |
| #2 – Clinical protocols and Standard Operating Procedures (SOPs) | “standard operating procedure” OR “SOP” OR “SOPs” OR “clinical protocol” OR “clinical protocols” OR “clinical guideline” OR “clinical guidelines” OR “care pathway” OR “care pathways” OR “evidence-based practice” OR “protocolos clínicos” OR “procedimentos operacionais padrão” OR “protocolos assistenciais” OR “governança clínica” |
| #3 – Health outcomes, patient safety, access and equity | “patient safety” OR “safety culture” OR “quality of care” OR “health outcome” OR “health outcomes” OR “health access” OR “access to healthcare” OR “equity in healthcare” OR “occupational health nursing” OR “workplace health” OR “acesso à saúde” OR “equidade em saúde” OR “segurança do paciente” OR “resultados em saúde” OR “custo-efetividade” OR “sustentabilidade em saúde” |
Critérios de elegibilidade
Para a amostra do estudo, foram adotados os seguintes critérios de inclusão: • Estudos originais, revisões, diretrizes ou documentos institucionais que abordassem, de forma direta ou indireta, as unidades de enfermagem universitárias;
- Publicações redigidas em português e inglês, de modo a contemplar a produção científica em âmbito nacional e internacional;
- Artigos publicados no intervalo temporal de 2015 a 2025, considerando a necessidade de refletir a evolução recente das práticas acadêmicas e assistenciais;
- Disponibilidade do texto completo, assegurando a análise integral do conteúdo.
Critérios de inelegibilidade
Foram considerados inelegíveis para esta revisão:
- Produções não científicas, tais como editoriais, cartas ao editor, comentários, notícias e resumos de eventos;
- Publicações sem disponibilidade integral do texto; (iv) trabalhos publicados antes de 2015 ou em idiomas diferentes do português e inglês;
- Registros duplicados em mais de uma base de dados, mantendo-se apenas a versão mais completa.
A seleção dos artigos foi realizada em conformidade com as diretrizes PRISMA (Preferred Reporting Items for Systematic Reviews and Meta-Analyses) (Page et al., 2021). As etapas do processo envolveram: (i) identificação e remoção de duplicatas; (ii) leitura de títulos e resumos; (iii) leitura integral dos artigos elegíveis; e (iv) aplicação dos critérios de inclusão e exclusão. O processo de triagem encontra-se detalhado no fluxograma apresentado na Figura 1.
Figura 1: Processo de Triagem e Inclusão de Estudos Conforme o Diagrama PRISMA

RESULTADO E DISCUSSÃO
As evidências mostram que as clínicas de enfermagem universitárias, além de formarem estudantes, prestam assistência direta à comunidade acadêmica e aos colaboradores, ampliam o acesso a consultas e procedimentos básicos, monitoram doenças crônicas como hipertensão arterial e diabetes melittus e desenvolvem ações específicas de saúde ocupacional, reduzindo vulnerabilidades e qualificando o ensino. (Oliveira Sousa et al., 2023; Santos et al., 2020)
No Brasil, (Oliveira et al., 2025) identificaram em um consultório-escola baixa cobertura vacinal e elevada prevalência de hipertensão arterial e diabetes melittus entre trabalhadores, evidenciando a ausência de ações sistematizadas de promoção e prevenção. Essa fragilidade compromete a saúde individual e a eficiência institucional, reforçando a clínica universitária como sentinela em saúde ocupacional.(Hurtado et al., 2022)
No cenário internacional, o modelo Caring University (Universidade Solidária), desenvolvido na Hungria, evidenciou que universidades podem assumir um papel ativo na promoção da saúde e do bem-estar de seus colaboradores e da comunidade acadêmica, por meio de check-ups regulares, campanhas preventivas e aconselhamento multiprofissional. (Ungváriet al., 2021)
No Brasil, ainda predominam vulnerabilidades pouco monitoradas que comprometem a efetividade das ações de saúde laboral e a adoção de protocolos de segurança.(Oliveira et al., 2025; Santos et al., 2020) A implementação de clínicas universitárias de enfermagem pode fortalecer esse cenário, ao oferecer prática supervisionada, formação crítica e monitoramento contínuo. Em países europeus e asiáticos, destacam-se estratégias de saúde ocupacional sustentadas por sistemas integrados e ferramentas de autoavaliação, eficazes na redução de riscos, absenteísmo e custos, além de promover uma cultura de segurança.(Pimentel et al., 2023; Rantala et al., 2024; Sirkka et al., 2025)
O estudo realizado por (De Morais et al., 2024) apontam que os Procedimentos Operacionais Padrão (POPs) favorecem o desempenho da equipe de enfermagem ao assegurar padronização e consistência técnica, contudo, sua efetividade depende de condições institucionais de suporte, como capacitação contínua, supervisão qualificada e compromisso organizacional com a segurança assistencial, sem os quais os protocolos tendem a perder aplicabilidade e impacto real na prática cotidiana.
De acordo com (Lima; Juliani; Spagnuolo, 2023) em cenários clínicos de ensino, a ausência de protocolos resultou em falhas na execução dos procedimentos médicos, um aumento do risco para os pacientes e danos na formação prática dos estudantes. De modo complementar,(Cerulus et al., 2025) identificou que a padronização fundamentada em evidências diminuiu a ocorrência de erros clínicos e alinhou a assistência aos princípios da segurança do paciente.
Evidências sugerem que o Procedimento Operacional Padrão (POP) não se limita a elevar a qualidade assistencial, contribuindo igualmente para o fortalecimento da cultura de segurança, sob a condição de serem sustentados por protocolos explícitos e pelo envolvimento ativo das equipas multiprofissionais.(Hortense et al., 2024) Foi demonstrado que definir claramente os papéis e as atribuições é um requisito essencial para o funcionamento adequado dos contextos interprofissionais, de forma a prevenir a sobreposição de funções e a promover a efetividade pedagógica. (Dale et al., 2025; Davis, 2021)
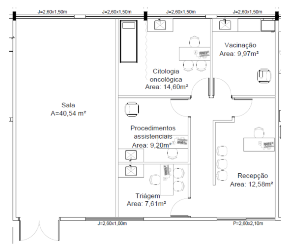
No âmbito da infraestrutura física da clínica universitária, o planejamento arquitetônico deve assegurar fluxos assistenciais organizados, em conformidade com as normas sanitárias vigentes e suporte à execução dos POPs. Esse alinhamento encontra respaldo na RDC nº 50 da Agência Nacional de Vigilância Sanitária (ANVISA) 39, a qual estabelece diretrizes para o planejamento físico de estabelecimentos assistenciais de saúde, abrangendo a organização dos ambientes, a separação de fluxos limpos e sujos, a garantia de acessibilidade, os requisitos de segurança e as condições de biossegurança indispensáveis à qualidade da assistência e do ensino (ANVISA, 2002).
A planta arquitetônica (Figura 2) ilustra essa conformidade ao apresentar a distribuição estratégica dos ambientes, incluindo recepção, sala de triagem, sala de procedimentos assistenciais, espaço destinado à coleta de citologia oncótica e sala de vacinação, evidenciando a integração entre assistência, ensino e biossegurança.
Figura 2: Planta baixa da Unidade de Assistência de Enfermagem com distribuição dos ambientes funcionais

A expansão dos cursos de enfermagem no Brasil representa um avanço para o fortalecimento do sistema de saúde e a ampliação das oportunidades formativas. Para consolidar esse crescimento de forma qualificada, é necessário alinhar a expansão a investimentos em infraestrutura e integração ensino-serviço, garantindo impacto positivo na formação e na assistência.(De Morais et al., 2024; Johnson et al., 2024) Corroborando com a expansão dos cursos de enfermagem(Sturm et al., 2024) ressalta que clínicas coordenadas por enfermeiros, com protocolos e fluxos bem definidos, favorecem a continuidade do cuidado e a satisfação dos usuários.
A literatura reforça que a infraestrutura física e organizacional constitui elemento central para a qualidade assistencial e para a formação em enfermagem. O estudo conduzido por(Oliveira et al., 2025) destaca que o consultório de enfermagem representa um espaço institucionalizado no qual o enfermeiro exerce autonomia no atendimento, configurando-se como ambiente estratégico para o cuidado aos colaboradores.(Porter-O’grady; Rollins; Bailey, 2025)
Esse entendimento é reiterado ao se reconhecer o campo clínico como um estabelecimento de saúde que deve dispor de infraestrutura, recursos humanos e organizacionais adequados para atividades de ensino-aprendizagem. (Aires-Moreno et al., 2025; Lavin; Kao, 2023) Demonstram que clínicas de enfermagem apoiadas em protocolos e fluxos padronizados alcançam indicadores assistenciais e formativos equivalentes ou até superiores aos serviços tradicionais, assegurando maior continuidade do cuidado e satisfação dos usuários. (Connolly; Cotter, 2023)
De forma complementar estudos (Dameri et al., 2023a) evidenciaram que, em contextos universitários, a adoção de POPs é determinante para a reprodutibilidade científica e para a segurança assistencial, promovendo consistência entre a formação acadêmica e a prática clínica. Nesse cenário, a ausência ou precariedade de infraestrutura inviabiliza a implementação efetiva desses protocolos e compromete a qualidade do atendimento, além de fragilizar a integração ensino-serviço.
A qualidade da aprendizagem em cenários clínicos depende de diretrizes e protocolos assistenciais claros; por isso, a implementação de POPs favorece simultaneamente a segurança assistencial e a formação profissional em práticas padronizadas.(Humphrey; Reed; Bellflower, 2025) De forma convergente, estudos indicam que a padronização por protocolos clínicos fortalece a segurança do paciente e qualifica processos de ensino.(Dameri et al., 2023b; Hortense et al., 2024) Ademais, a explicitação de papéis em equipes interprofissionais aumenta a efetividade pedagógica(DAVIS, 2021), enquanto os POPs continuamente atualizados atuam como ferramentas de cuidado seguro e de aprendizagem estruturada.(Dale et al., 2025) Nessa perspectiva, clínicas lideradas por estudantes têm mostrado impacto positivo na aprendizagem experiencial e no desenvolvimento de competências comunicacionais, colaborativas e clínicas, além de ampliar o acesso de usuários a serviços de saúde. (Channa et al., 2024; Prestes Vargas et al., 2025) A integração ensino-serviço é fortalecida quando associada a metodologias que unem simulação e prática clínica, permitindo que os discentes consolidem habilidades técnicas e gerenciais. (Dedmon et al., 2024; Kodweis et al., 2023) O estudo desenvolvido por 40 ainda reforça essa perspectiva ao demonstrar que clínicas lideradas por enfermeiros se mostram custo-efetivas e sustentáveis, reduzindo gastos institucionais e fortalecendo a viabilidade desses modelos. Quando associadas à padronização dos processos via POPs, tais clínicas não apenas qualificam o cuidado, mas também favorecem a eficiência financeira e organizacional.
Em síntese, os estudos demonstram que clínicas universitárias de enfermagem, quando estruturadas a partir de POPs consistentes e apoiadas por infraestrutura adequada, representam um espaço estratégico para a integração ensino-serviço-comunidade, promovendo saúde integral, fortalecendo a formação prática, padronizando processos e garantindo sustentabilidade institucional. Sua efetividade, contudo, depende da articulação entre protocolos baseados em evidências, suporte organizacional, capacitação contínua e monitoramento de indicadores capazes de evidenciar o impacto real na saúde da comunidade acadêmica e na qualificação profissional.
CONCLUSÃO
Ao unirem assistência em saúde e formação prática, as unidades de enfermagem universitárias configuram-se como resposta concreta às demandas da comunidade acadêmica e dos colaboradores institucionais. Os resultados demonstram que esses serviços viabilizam o monitoramento de condições crônicas, a prevenção de agravos e a promoção da saúde ocupacional, ao mesmo tempo em que fortalecem competências clínicas e pedagógicas. Sua efetividade, contudo, depende de medidas objetivas: a adoção de POPs que assegurem a padronização das condutas e a segurança do atendimento, a manutenção de uma infraestrutura capaz de sustentar fluxos assistenciais organizados, a capacitação permanente de docentes, discentes e equipes de apoio e o acompanhamento sistemático de indicadores que revelem o impacto real do serviço. Dessa forma, a clínica universitária de enfermagem não deve ser compreendida apenas como um campo de estágio, mas como um núcleo estruturante de governança em saúde acadêmica, capaz de integrar cuidado, ensino e sustentabilidade institucional.
REFERÊNCIAS
1. Prestes Vargas J, Smith M, Chipchase L, Morris ME. Impact of interprofessional student led health clinics for patients, students and educators: a scoping review. Advances in Health Sciences Education. 6 de fevereiro de 2025;30(1):321–45.
2. Shakoor K, Boelens L, Yingling C. Improving Nurse Practitioner Practice Readiness in an Interprofessional Student-Run Free Clinic. Journal for Nurse Practitioners. 1ode julho de 2023;19(7).
3. Rupert DD, Alvarez G V., Burdge EJ, Nahvi RJ, Schell SM, Faustino FL. Student-Run Free Clinics Stand at a Critical Junction Between Undergraduate Medical Education, Clinical Care, and Advocacy. Vol. 97, Academic Medicine. Lippincott Williams and Wilkins; 2022. p. 824– 31.
4. Krakov AO, Zack O, Sagiv OY, Slodownik D, Raanan R, Alperovitch-Najenson D, et al. Disparities in occupational health services: an international comparative study. Journal of Occupational Medicine and Toxicology. 1ode dezembro de 2023;18(1).
5. Ungvári Z, Ádány R, Szabó AJ, Dörnyei G, Moizs M, Purebl G, et al. Semmelweis Caring University Model Program Based on the Development of a Center of Preventive Services: Health for All Employees at a University Occupational Setting. Vol. 9, Frontiers in Public Health. Frontiers Media S.A.; 2021.
6. Pérez-Vergara M, Cañas-Lopera EM, Ortiz JA, Rojas NA, Laverde-Contreras OL, Sánchez Herrera B. Nursing Care at the Service of Life: A model including charity, quality, and leadership. Nurs Forum (Auckl). 1ode outubro de 2021;56(4):844–8.
7. Htay M, Whitehead D. The effectiveness of the role of advanced nurse practitioners compared to physician-led or usual care: A systematic review. Vol. 3, International Journal of Nursing Studies Advances. Elsevier B.V.; 2021.
8. Pu X, Malik G, Murray C. Nurses’ experiences and perceptions of running nurse-led clinics: A scoping review. Vol. 30, International Journal of Nursing Practice. John Wiley and Sons Inc; 2024.
9. Silva ÉFA da, Christovam BP, Chagas HM de A, Cunha CLF. implementação de melhorias na atenção primária à saúde: protocolo de enfermagem e gerenciamento de unidades. Enfermagem em Foco. 10 de setembro de 2024;15.
10. Sirkka J, Suhonen R, Liira J, Stolt M. Occupational Health Nurses’ Perceptions in Work Ability Risk Management and Analysis. J Occup Rehabil. 15 de junho de 2025;35(2):423–33.
11. Oliveira Sousa M, Gomes de Andrade A, Angélica Da Hora R, Emanuel dos Santos L, Fernando Silva Cardoso L, Caires Moreira Dos Santos I, et al. Educação Permanente em Saúde: implementação do protocolo gerenciado da sepse em uma Unidade de Pronto-Atendimento. Saúde em Redes. 3 de julho de 2023;9(2):4149.
12. Hulme A, Sangelaji B, Walker C, Fallon T, Denham J, Martin P, et al. Efficacy of a student led interprofessional health clinic in regional Australia for preventing and managing chronic disease. J Interprof Care. 2024;38(5):893–906.
13. Salum MEG, Erdmann AL, da Cunha KS, Kahl C, Lanzoni GM de M, Meirelles BHS. University educational management and clinical practice applied to nursing by the faculty of a public university. Rev Bras Enferm. 2020;73(6).
14. Dal K, Mendes S, Cristina De Campos R, Silveira P, Galvão CM. Out-Dez. Vol. 17. 2008.
15. Whittemore APRN R, Knafl Elizabeth Gray Distinguished Professor KN, Knafl K. METHODOLOGICAL ISSUES IN NURSING RESEARCH The integrative review: updated methodology.
16. Cheraghi R, Valizadeh L, Zamanzadeh V, Hassankhani H, Jafarzadeh A. Clarification of ethical principle of the beneficence in nursing care: an integrative review. BMC Nurs. 1o de dezembro de 2023;22(1).
17. Santos KM dos, Tracera GMP, Zeitoune RCG, Sousa KHJF, Nascimento FPB. Perfil da equipe de enfermagem de unidades ambulatoriais universitárias: considerações para a saúde do trabalhador. Escola Anna Nery. 2020;24(2).
18. Oliveira AC da S, Oliveira TF de, França C da S, Ribeiro G de MA, Vargas GSA, Santos MO dos, et al. O papel de um consultório escola de enfermagem na saúde do trabalhador. Research, Society and Development. 30 de agosto de 2025;14(8):e9414849434.
19. Hurtado SLB, Silva-Macaia AA, Vilela RAG, Querol MAP, Lopes MGR, Bezerra JLC. Occupational health interventions – context, challenges and possibilities for development: a scoping review. Revista Brasileira de Saude Ocupacional. 2022;47.
20. Pimentel FG, Buchweitz C, Onocko Campos RT, Hallal PC, Massuda A, Kieling C. Realising the future: Health challenges and achievements in Brazil. SSM – Mental Health. 15 de dezembro de 2023;4.
21. Rantala M, Lindholm M, Kivistö-Rahnasto J, Nenonen N, Tappura S. A tool for self evaluation of a successful occupational health and safety risk assessment. Saf Sci. 1o de maio de 2024;173.
22. De Morais F, Bellaguarda ML dos R, Honorio Locks M, Souza Lima DK, Chidelli Sallum NM, Dutra Tholl A, et al. Validação do procedimento operacional padrão para os cuidados de enfermagem no banho de aspersão no quotidiano do idoso institucionalizado. Nursing Edição Brasileira. 13 de setembro de 2024;28(315):9406–10.
23. Lima SGS e, Juliani CMCM, Spagnuolo RS. Consulta de enfermagem na atenção primária: do início da práxis ao cotidiano. Revista Baiana de Enfermagem. 2023;37.
24. Cerulus M, Duerinckx N, Dobbels F, Heeren P, Dauvrin M, Detollenaere J, et al. The Organisation and Implementation of Nurse‐Led Clinics: Lessons Learned From the Experiences in Five Countries. J Adv Nurs. 7 de maio de 2025;
25. Hortense P, Grossi MG, Pinto MJ de S, Prediger KM, Xavier PC, Deliberali VF. Nurses in an interdisciplinary pain clinic: the experience of a university extension. Escola Anna Nery. 2024;28.
26. Dale M, Duffy A, King N, Saunders K, Matlock K. Perceived barriers to care and access to university mental health support services among first-year undergraduates: findings from the U-Flourish study. Journal of American College Health. 10 de setembro de 2025;1–10.
27. Davis L. Utilization of health and non-health major interdisciplinary teams in an undergraduate nursing faculty-student run community wellness clinic setting. Journal of Professional Nursing. janeiro de 2021;37(1):108–11.
28. Johnson C, Ingraham MK, Stafford SR, Guilamo-Ramos V. Adopting a nurse-led model of care to advance whole-person health and health equity within Medicaid. Nurs Outlook. julho de 2024;72(4):102191.
29. Sturm J, van Staa A, Escher JC, Sattoe J. Exploring six successful nurse-led transition clinics: Experiences and outcomes. Health Care Transitions. 2024;2:100071.
30. Porter-O’Grady T, Rollins S, Bailey KD. Nursing Professional Governance: The Structure to Enable Professional Practice. Nurse Lead. setembro de 2025;102512.
31. Aires-Moreno GT, Marques LG, Ramos SF, de Castro Araújo-Neto F, de Oliveira Santos Silva R, Fernandes BD, et al. Improving patient safety culture in hospitals: A scoping review. Research in Social and Administrative Pharmacy. outubro de 2025;21(10):765–83.
32. Lavin J, Kao LS. Building infrastructure to teach quality improvement. Semin Pediatr Surg. abril de 2023;32(2):151283.
33. Connolly C, Cotter P. Effectiveness of nurse‐led clinics on healthcare delivery: An umbrella review. J Clin Nurs. 30 de maio de 2023;32(9–10):1760–7.
34. Dameri M, Cirmena G, Ravera F, Ferrando L, Cuccarolo P, Stabile M, et al. Standard Operating Procedures (SOPs) for non-invasive multiple biomarkers detection in an academic setting: A critical review of the literature for the RENOVATE study protocol. Crit Rev Oncol Hematol. maio de 2023;185:103963.
35. Humphrey S, Reed L, Bellflower B. Optimizing Advanced Practice Registered Nurse Clinical Site Visits With a Standard Operating Procedure. The Journal for Nurse Practitioners. outubro de 2025;21(9):105515.
36. Dameri M, Cirmena G, Ravera F, Ferrando L, Cuccarolo P, Stabile M, et al. Standard Operating Procedures (SOPs) for non-invasive multiple biomarkers detection in an academic setting: A critical review of the literature for the RENOVATE study protocol. Vol. 185, Critical Reviews in Oncology/Hematology. Elsevier Ireland Ltd; 2023.
37. Channa S, Topping A, Willis C, Melody T, Pearce R. Clinical learning experiences of healthcare professional students in a student-led clinical learning environment (SLCLE) – A mixed methods evaluation. Nurse Educ Pract. agosto de 2024;79:104035.
38. Dedmon DD, Beasley LD, Manasco C, Nellis K, McElravey TR, Rickard MN, et al. Engaging with the Community Before Deploying a Rural Mobile Health Unit. The Journal for Nurse Practitioners. outubro de 2024;20(9):105167.
39. Kodweis KR, Allen RB, Deschamp EI, Bihl AT, LeVine DAM, Hall EA. Impact of student run clinic participation on empathy and interprofessional skills development in medical and pharmacy students. Exploratory Research in Clinical and Social Pharmacy. setembro de 2023;11:100306.
1Mestranda. Programa de Pós-Graduação Ciências Farmacêuticas, Farmacologia e Terapêutica. Da Universidade Evangélica de Goiás- UniEVANGÉLICA. elida.silva@unievangelica.edu.br
ORCID: https://orcid.org/0009- 0005-5060-0041
2Mestranda. Programa de Pós-Graduação Ciências Farmacêuticas Farmacologia e Terapêutica da Universidade Evangélica de Goiás – UniEVANGÉLICA. fabiana.gomes@unievangelica.edu.br
ORCID: https://orcid.org/0009- 0005-9012-7797
3Doutor. Curso de Direito da Universidade Evangélica de Goiás- UniEVANGÉLICA. E-mail: guilherme.vieira@unievangelica.edu.br ORCID: https://orcid.org/0000-0002-9059-4767
4Mestre. Curso Enfermagem da Universidade Evangélica de Goiás- UniEVANGÉLICA. E-mail: heloiza.lago@unievangelica.edu.br ORCID: https://orcid.org/0000-0001-7842-2869
5Especialista. Curso de Fisioterapia da Universidade Evangélica de Goiás- UniEVANGÉLICA. E-mail: lais.santos@docente.unievangelica.edu.br. ORCID: https://orcid.org/0009-0005-8426-3610
6Doutor. Curso de Farmácia da Universidade Evangélica de Goiás- UniEVANGÉLICA. E-mail: jose.martins@docente.edu.br
ORCID: https://orcid.org/0000-0003-3516-5350
