REGISTRO DOI: 10.69849/revistaft/pa10202509300957
Elder Fabricio dos Santos Góes Junior1
Fabiano Luís Belém2
RESUMO
O presente trabalho objetiva analisar o uso de croquis como recurso didático-pedagógico na Escola Estadual Gonçalves Dias, em Macapá (AP), pondo em evidência sua contribuição para o desenvolvimento cognitivo e cartográficos dos alunos. A pesquisa, de cunho qualitativo, foi aplicada a uma turma de 7º ano do ensino fundamental, através de exercícios didáticos e práticos que abrangeram a confecção de croquis representando o trajeto casa-escola. Os resultados mostraram que, embora alguns discentes apresentaram déficit em relação a elementos mais técnicos da Cartografia, a maioria demonstrou um entendimento razoável de localização, orientação e noção do trajeto vivenciado diariamente. Ainda se ressalta que elaborar croquis estimulou a criatividade, o senso empírico e a aproximação da práxis desenvolvida no conteúdo, apesar de demonstrar uma necessidade de chamar melhor a atenção dos estudantes para esse conteúdo, através de metodologias lúdicas diferentes das usuais. Assim, a utilização de croquis edifica uma estratégia eficaz neste ponto, dinamizando o ensino da Geografia e promovendo não só um manejo de conteúdos cartográficos, como também uma formação de cidadãos mais conscientes do espaço em que habitam.
Palavras-chave: Cartografia. Ensino da Geografia. Croquis
INTRODUÇÃO
A Cartografia é uma matéria de suma importância no ensino da Geografia, por proporcionar um método de representação dos fenômenos espaciais que acontecem no mundo ao nosso entorno. Segundo Lacoste (1981) a Geografia e a Cartografia são componentes que se coincidem por um conhecimento geográfico: o de permitir às pessoas conhecerem seu espaço.
De forma tradicional, a Cartografia costuma ser ensinada com a utilização de mapas, globos e outros recursos, que embora sejam fundamentais, muitas vezes estão longes da realidade vivida pelos alunos. Nesse contexto, o uso de croquis, que são representações cartográficas mais simples, sem muita preocupação com as medidas e as distorções (PISSINATI & ARCHELA, 2007), e geralmente elaboradas à mão, pode ser uma estratégia eficiente para tornar próximos os discentes da noção do espaço geográfico, de modo mais direto e chamativo.
Um mapa pode ser entendido como um reflexo de um espaço, uma representação que tende a passar por mudanças e por leituras que modifiquem a sua extensão ali estabelecida (RICHTER et al, 2010). E o croqui, por ser um tipo de mapa, possibilita que os alunos se envolvam ativamente com o conteúdo, traduzindo suas percepções e entendimentos do espaço de um modo mais próximo e fiel daquilo que se vive.
Conforme Simielli (1999):
“O mapa mental permite observar se o aluno tem uma percepção eletiva da ocorrência de um fenômeno do espaço e condições de fazer a sua transposição para o papel. Ele vai trabalhar com todos os elementos essenciais que a Cartografia postula no tocante a sua forma de expressão: a linguagem gráfica. ” (SIMIELLI, P. 107, 1999)
Em contraponto aos mapas de uso convencional, o croqui se observado sob a ótica de mapa mental, possibilita aos estudantes uma expressão do entendimento espacial de forma livre, baseando-se em suas experiências individuais e em como interpretam o conceito de território. A criação de croquis como mapa mental e como exercício em sala de aula permite aguçar a análise crítica do espaço geográfico, dando possibilidade aos estudantes se relacionarem de modo mais profundo com o ambiente que os cerca, seja urbano, rural ou natural.
Ademais, a utilização de croquis na escola pode criar um ambiente de aprendizado mais interativo e cooperativo, onde os estudantes compartilham informações e debatem suas representações pessoais do espaço. Segundo Ferreira Junior & Santos (2022):
“A produção dos croquis é uma proposta viável para os alunos no âmbito escolar, devido ao intuito de cumprir essas etapas de elaboração, desenvolvendo habilidades geográficas, desde representações à elementos que permitem fazer a leitura cartográfica de um mapa” (FERREIRA JÚNIOR & SANTOS, 2022).
Este procedimento pode ser crucial no aprimoramento de competências cognitivas e sociais, tais como a solução de problemas, a colaboração em equipe e a argumentação. Compreender a maneira com que essa prática pedagógica pode ser adotada ao currículo escolar é necessário, pois serve de contribuição para o aprimoramento do entendimento geográfico e para a formação de cidadãos mais críticos e conscientes do espaço que os cerca, afinal de contas, quando se fala de Cartografia, também se fala de Geografia – e vice-versa. Cabe ao professor, portanto, investigar a fundo esse vínculo e ressaltar como ambos influenciam o saber geográfico do aluno e até mesmo seu exercício pleno da cidadania (ALBUQUERQUE, 2021).
Neste viés, o trabalho examinará a maneira com a qual a confecção dos croquis pode influenciar o aperfeiçoamento das competências de Cartografia dos alunos, reforçando a compreensão dos mesmos em relação à conceitos geográficos de maneira mais visual e prática.
Será examinado se o uso de croquis na escola abordada aprimora o entendimento de Cartografia dos alunos envolvidos, incentivando a leitura do espaço geográfico por meio do conceito de lugar e a conexão entre o ambiente social e físico. A pesquisa será desenvolvida a fim de experimentar quais os conhecimentos dos alunos em relação à Cartografia, utilizando a metodologia do croqui como avaliação.
É de importância significativa evidenciar a importância que a Cartografia obtém no ensino de Geografia, principalmente no que tange ao desenvolvimento de habilidades cognitivas e de compreensão espacial. Com base neste pressuposto, é fundamental para este projeto expor como uma metodologia cartográfica pode dinamizar o processo de ensino e aprendizagem quando se fala de Geografia em sala de aula.
Em paralelo, deve ser considerada a Base Nacional Comum Curricular (BNCC) para fortalecer a importância de estudar competências como leitura cartográfica e geográfica. Conforme a BNCC (2018) explica, a Geografia ao ser ensinada precisa levar em conta a percepção espacial do aluno. Assim, se alinhar isto com o uso de croquis nas escolas, é possibilitado que se faça um estudo acerca disso.
Este trabalho, portanto, também evidencia componentes relevantes para a formação de cidadãos críticos e conscientes do espaço em que se vivem, em especifico seu lugar. Esta pesquisa contribui para o aperfeiçoamento de estratégias pedagógicas na disciplina de Geografia e como o uso da Cartografia enquanto recurso didático, pedagógico e lúdico incentiva a busca do aprendizado por parte dos estudantes.
OBJETIVO
Examinar e introduzir métodos e práticas pedagógicas para o ensino de Cartografia que permitam o entendimento espacial e geográfico no contexto escolar da Escola Estadual Gonçalves Dias, observando como o estudante entende o conhecimento ensinado em sala de aula e como ele o conecta com a sua cognição do espaço geográfico ao seu redor, em principal quando se fala de lugar geográfico.
OBJETIVO ESPECÍFICO
Evidenciar o uso do croqui como recurso didáticos-pedagógico, e como o uso deste instrumento contribui para o ensino da Cartografia. Avaliar como esses recursos influenciam um entendimento mais interativo do espaço geográfico. Observar o desempenho dos estudantes do 7º ano do ensino fundamental anos finais da Escola Estadual Gonçalves Dias, na cidade de Macapá. Tal análise será baseada em atividades didáticas-pedagógicas e na compreensão de conceitos-chaves como lugar, trajeto e orientação espacial.
METODOLOGIA
Conforme Gil (1987), o procedimento metodológico de uma pesquisa necessita de quatro estâncias, que são: o tipo de pesquisa, população e amostra, coleta de dados, e análise de dados. Baseando-se nesse esquema, este projeto tem como metodologia um estudo de caso que objetiva elaborar um experimento lúdico e de ensino em sala de aula, para posteriormente avaliar e analisar, tendo em vista a compreensão dos estudantes por meio destas atividades pedagógicas.
Figura 1: alunos da turma 712 em aula

O processo metodológico deste trabalho se divide em dois momentos. Inicialmente, foi feito durante uma experiência de Estágio Supervisionado, uma observação no desempenho dos estudantes do 7º ano do ensino fundamental da Escola Estadual Gonçalves Dias, na cidade de Macapá. Tal análise foi baseada, no primeiro momento, em examinar as atividades didático-pedagógica ministradas pelo professor da escola, e também como se dava a compreensão dos alunos em relação aos assuntos ministrados. A turma em questão foi identificada como 712, do turno da manhã do ano de 2024.
Ocorreu então, durante um dos dias do Estágio, uma aula extraordinária – à parte do conteúdo programático – de 50 min para apresentação e discussão de conceitos-chave da Cartografia e sua interface com a Geografia, como lugar, espaço geográfico, norte geográfico e orientação geográfica. Logo após, houve a aplicação da atividade baseada na confecção de croquis para toda a turma de 20 alunos, com um modelo pré-elaborado de maneira parcial.
Posteriormente, foi feita uma análise dos 23 croquis elaborados, visando a viabilidade da pesquisa, se o croqui apresentou corretamente o trajeto na qual o aluno percorre da sua casa até a escola, dentre outras considerações conforme a figura 2. Permitiu-se a criatividade orientar o ritmo neste momento, alinhando com o conteúdo apresentado e discutido na primeira etapa do processo, juntamente com o conhecimento adquirido dos alunos. Por fim, após os procedimentos metodológicos aplicados, haverá a análise dos croquis através de tabelas e imagens para verificar se o processo teve os resultados esperados com bases nos objetivos propostos nesta pesquisa, evidenciando o nível de compreensão do conteúdo por parte dos alunos
Figura 2: Fluxograma do processo metodológico da pesquisa.

AREA DE ESTUDO
A área de estudo está localizada na Escola Estadual Gonçalves Dias, no bairro do Buritizal em Macapá, Amapá conforme a figura 3. A turma analisada será a 712 do 7º ano do ensino fundamental anos finais, do turno matutino.
Explorar a aplicação de croquis na prática da Cartografia escolar e no ensino de Geografia é o intuito desta pesquisa, especificamente na Escola Estadual Gonçalves Dias, localizada em Macapá, Amapá. A escolha deste local justifica-se pela demanda de pesquisar e intensificar métodos didáticos que deem preferência a um aprendizado mais contextualizado e relevante, além de suas especificidades locais e culturais dos discentes desta instituição serem levadas em consideração.
Figura 3: Mapa de localização da área de estudo

REFERENCIAL TEÓRICO
Quando se fala de lugar, é fundamental associar este conceito à compreensão do entendimento e do ensino geográfico, pois a partir desta palavra-chave será possível desenvolver a ideia basilar desta pesquisa e consigo sua finalidade. No ensino de Geografia, trabalhar o conceito de lugar permite aproximar o conteúdo da realidade dos alunos, já que conecta o conhecimento escolar às suas próprias experiências. Deste modo, utilizar croquis como metodologia pedagógica fortalece a relação entre teoria e prática no processo de aprendizagem.
Santos (2002) entende o lugar como um espaço construído e vivenciado, que abarca experiências, lembranças e significados atribuídos pelas pessoas, sem contar apenas a sua localização geográfica. No ambiente escolar, o conceito de lugar permite a conexão dos estudantes à realidade do seu cotidiano e que compreendam a Geografia de maneira mais assertiva.
Relph (1976) também teoriza o conceito de lugar de modo quase equivalente. Além de defender que o lugar não se trata somente de recorte geográfico, também expõe que tal conceito abrange o sensorial e o emocional, arquitetado por experiências individuais.
Não obstante, a construção dessa ideia espacial pode ser entendida também através da teoria cognitiva de Jean Piaget. Quando se fala de representação de objetos e lugares, é possível fazer uma conexão ao desenvolvimento de habilidades cognitivas. Para Piaget (1975), o entendimento de mundo se dá através de representações mentais, que evoluem juntamente ao crescimento do indivíduo e a interação deste com o ambiente a seu redor.
O croqui, como uma forma de representação do espaço, consegue ser compreendido como uma atividade de estimulo à construção das representações mentais supracitadas. Além do mais, o croqui pode ser um meio eficaz para o pensamento espacial, uma vez que exige habilidades de orientação e localização por parte do discente.
O uso de tecnologias no ensino da Cartografia também pode incrementar a experiência dos alunos e ampliar as possibilidades de representar o espaço. A Cartografia digital pode ser anexada a este processo pedagógico, através de softwares e aplicativos como Google Earth. Assim, o entendimento dos estudantes a respeito de conceitos espaciais pode ocorrer de maneira mais precisa e detalhada.
Ferro (2011) ressalta que a Cartografia digital pode ser uma poderosa ferramenta para ensinar Geografia. Ao combinar o croqui tradicional – desenhado a mão – com as representações digitais, os alunos assim podem perceber a continuidade e transformação do espaço, além de visualizar de modo mais fidedigno a representação original do recorte.
Com base nestes autores encontra-se a pertinência da metodologia de croquis, uma vez que esses desenhos, originados geralmente da vivência e relação direta do aluno- ambiente, propiciam uma forma espontânea de representar determinado espaço.
Ao adentrar no debate de vivência e percepção pessoal, fala-se de Fenomenologia e suas vertentes. Conforme Merleau-Ponty (2006), o entendimento do espaço está intrinsecamente vinculado à experiência corporal, sensorial e ao dia a dia. Entende-se a partir disso que o ensino de Geografia deve levar em consideração a forma na qual os discentes sentem e experimentam os espaços em seu entorno.
Partindo do ponto de vista dos croquis, este método fenomenológico contribui substancialmente, uma vez que para a técnica da confecção, o estudante necessita observar o espaço de maneira cautelosa, e também ativamente participar nessa representação. Tessler (2015) defende que o uso do croqui no ensino geográfico pode ser visto como uma estratégia didática que incentiva o aprimoramento de percepção, e consequentemente permite aguçar o conhecimento de Cartografia dos alunos.
É importante citar que o ensino de Geografia, integrado à Base Nacional Comum Curricular (BNCC), respalda a implementação de métodos pedagógicos inovadores, no caso o uso de croquis. A BNCC (2018) destaca que o ensino da Geografia deve ser pautado no desenvolvimento da percepção e compreensão do espaço vivido pelos estudantes. Neste contexto, o croqui proporciona uma maneira dinâmica e contextualizada de aprender Geografia, favorecendo a construção não só de saberes geográficos, mas também competências cognitivas, como a capacidade de interpretar e representar o ambiente de maneira criativa.
No ambiente escolar, o esboço pode ser um recurso eficaz, pois possibilita que os estudantes visualizem e organizem o espaço de forma clara e compreensível. A tarefa de elaborar croquis pode auxiliar os estudantes no processo de ensino-aprendizagem de maneira interativa e prática, incentivando a reflexão sobre o espaço experimentado e sua conexão com a geografia tradicionalmente ensinada. A utilização de desenhos em aulas de Geografia pode ser uma tática eficiente para conectar os estudantes à sua realidade geográfica e promover o aprimoramento de habilidades cartográficas.
A união de teorias sobre o lugar geográfico, a fenomenologia da percepção e a singularidade dos croquis estabelece uma fundação robusta para a aplicação de uma metodologia de ensino que valorize o conhecimento do estudante sobre seu próprio território, ao mesmo tempo que promove o aprimoramento de competências geográficas fundamentais.
A IMPORTÂNCIA DA CARTOGRAFIA ESCOLAR
Quando se fala em processo de ensino-aprendizagem da Geografia, a Cartografia escolar assume um papel essencial em relação a isso, pois oferece instrumentos para o aluno entender, representar e interpretar o espaço vivido. Além de lidar com mapas propriamente ditos, a Cartografia permite ao estudante desenvolver habilidades cognitivas relacionadas à percepção do espaço, à localização e à orientação, critérios estes que são parcialmente fundamentais para a construção do pensamento geográfico.
Conforme Albuquerque (2021), a Cartografia além de ser entendida como uma técnica de representação, também é concebida como uma linguagem que aproxima teoria e prática no contexto escolar. Trabalhando com diversas formas de representação espacial, entre elas mapas, globos, plantas, croquis e cartas, o professor deve estimular a relação entre o conteúdo cientifico e as vivências pessoais dos estudantes.
Um aspecto importante de quando se fala em Cartografia escolar é a chamada “alfabetização cartográfica”, etapa na qual o discente aprende a fazer a leitura de símbolos, legendas, escalas e orientações espaciais. Esse processo amplia não somente a competência escolar, como também a capacidade de o estudante atuar e conviver socialmente, fazendo leitura e intervindo no espaço em que vive.
As competências gerais e especificas propostas pela BNCC também podem receber contribuição direta da Cartografia escolar, pois enfatiza a necessidade de formar cidadãos conscientes e autônomos. Neste caso, a BNCC aponta que é fundamental o aluno saber examinar fenômenos espaciais, compreender interações entre sociedade e natureza e representar o espaço graficamente. Assim, não é conveniente que a Cartografia escolar seja vista como um conteúdo isolado, como um recurso transversal que perpassa todo o ensino da Geografia.
Desse modo, a Cartografia escolar deve ser consolidada como um instrumento de leitura e interpretação espacial, e também como um método pedagógico que leva em conta a experiência individual do estudante. Representar uma conexão entre ciência e vivência é um de seus papéis, permitindo assim que a Geografia cumpra sua função social: a de formar indivíduos aptos a compreender e transformar o espaço no qual estão inseridos.
OS CROQUIS E MAPAS MENTAIS APLICADOS AO ENSINO
O uso de croquis nas escolas remete a práticas pedagógicas que se baseiam no pensamento espacial e na relação deste com as ideias consideradas dos alunos. É possível comparar o croqui a um mapa mental – mesmo ambos tendo suas disparidades – já que representa a maneira a qual o estudante sente, vive, organiza e interpreta o seu espaço de vivência. Também conecta elementos do dia-a-dia juntos com sua experiência individual de deslocamento e percepção do espaço.
Dentro do âmbito da escola, essa representação permite que aluno também se depare com duas formas de conhecimento: o abstrato – noção de pontos cardeais e orientação – e o concreto, que tem a ver com a experiência do local, o trajeto casa-escola e os elementos gráficos de referência – desenho de casas, ruas, e estabelecimentos durante o caminho.
Propondo que o discente faça o croqui, estará ocorrendo um estímulo aos discentes para conectar essa dicotomia do saber geográfico, e por fim possibilitando a fixação do conteúdo de forma mais completa. Ferreira Junior e Santos (2022) defendem que essa metodologia aproxima a teoria da realidade dos estudantes, e fortalece um entendimento maior sobre o espaço em que vem, além de fortalecer suas criticidades.
Assim sendo, os croquis podem ser entendidos como instrumentos básicos para o ensino de Geografia e Cartografia, uma vez que estimulam habilidades cognitivas, visuais, espaciais e sociais, e potencializam a aprendizagem ativa e contextualizada do aluno.
Já os mapas mentais quando conectados ao ensino de Geografia, ampliam a noção de uso dos croquis. Sendo o croqui uma representação do espaço vivido, o mapa mental abrange dimensões cognitivas, simbólicas e afetivas do entendimento espacial. Simielli (1999) explica que o mapa mental permite observar se o estudante possui percepção seletiva de fenômenos espaciais, além de ressaltar a sua capacidade de transpor essa percepção para o papel, utilizando a linguagem gráfica como método de se expressar.
Nesse viés, o conceito de mapa mental não se limita a ser somente uma reprodução fiel do espaço, mas sim de como o indivíduo percebe, sente e organiza mentalmente determinado recorte. Ao desenhar um mapa mental de onde mora, o aluno pode destacar espaços que considera mais importantes e que tocam no seu senso afetivo, ao mesmo tempo que desenha superficialmente elementos que não chamam tanto sua atenção. Tal subjetividade é justamente o que torna o mapa mental uma ferramenta pedagógica de suma importância, pois revela a relação sentimental e afetiva do discente com o espaço.
Portanto, embora detenham características distintas, croquis e mapas mentais se complementam quando se fala em processo pedagógico. Ambos estimulam a autonomia criativa, o esforço cognitivo e a compreensão espacial, ao mesmo tempo que aproximam a Geografia e a Cartografia da realidade vivida pelos alunos. Juntos representam uma metodologia eficaz para integrar teoria e prática, tornando o ensino deste âmbito mais produtivo e contextualizado.
RESULTADOS E DISCUSSÕES
Nesta pesquisa, a análise e avaliação dos croquis confeccionados pelos alunos levou em consideração três aspectos, sendo eles a criatividade, que seriam o uso de ferramentas extras para animar o desenho (lápis de cor, pincel, régua etc.) e o cuidado por parte dos discentes em elaborar no croqui o seu acabamento e detalhes mais próximos possíveis da realidade.
A noção de espaço e localização também é fundamental para compreender como funciona o entendimento individual de onde o aluno está naquele momento – no caso, na escola – e como ele percebe e desenha o espaço ao seu redor sem necessariamente vê-lo, somente pela memória e suas vivências até então.
Por último, a noção de orientação e trajeto: assim como o aspecto anterior, é muito importante saber também como está o conhecimento do aluno em relação à sua trajetória diária da escola para casa, avaliando também a sua memória tanto mental, quanto visual.
A partir dessas instâncias, a proposta avaliativa baseou-se em dispor uma tabela qualitativa dos 23 croquis, que avaliará de 1 a 2 cada um dos quesitos e logo em seguida uma discussão geral sobre o desempenho dos alunos. Se avaliado com o número 1, o resultado será positivo; se avaliado com o número 2, será negativo. Os croquis também estão dispostos no apêndice desta pesquisa.
Quadro 1: Avaliação do desempenho dos alunos






Elaboração: autor, 2025
Observou-se que os resultados indicam um desempenho misto. A criatividade apresentou um resultado majoritariamente negativo. Embora alguns croquis tenham sido coloridos e customizados (como os identificados com 6, 8, 13, 16, 18 e 22), muitos outros se limitaram em relação ao aspecto criativo, entregando uma representação mínima e escassa de detalhes, com traçados muito simples e sem uso de recursos visuais mais expressivos. Pode-se inferir que isso indica uma certa limitação no incentivo à criatividade dentro do exercício ou até mesmo, insegurança dos alunos em relação à exposição de suas ideias em relação ao desenho cartográfico.
Em relação ao espaço e localização, por sua vez, os estudantes conseguiram representar, em média, uma boa noção dos elementos ao entorno da escola e de suas residências, apesar das variações individuais nos detalhes. O mesmo pode se dizer do critério de orientação e trajeto: a média foi satisfatória, com a maioria dos discentes representando de forma concisa o caminho da escola até a sua residência. No entanto, diversos croquis careciam de elementos essenciais da cartografia como pontos cardeais e legendas. Isso demonstra que, embora os alunos compreendam o espaço e o lugar vivido, ainda necessitam de reforço no que tange à conhecimentos técnicos.
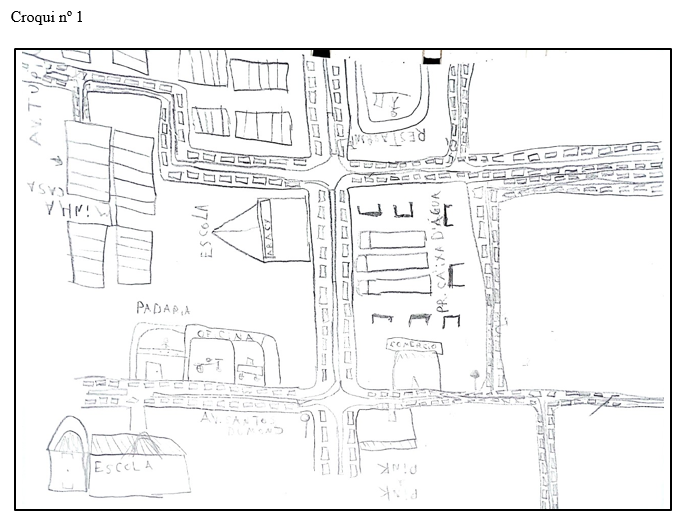
Partindo para uma especificidade maior, foi feito também um comparativo técnico dentre os croquis de nº 7 e o de nº 23. No caso do primeiro, constatou-se um desempenho aquém da média em termos de criatividade. O discente representou o trajeto de maneira muito simplória, sem uso de cores ou símbolos que enriqueceriam o resultado. A falta de elementos gráficos comprometeu a expressividade do desenho, fazendo com que a atração visual e a fidelidade ao espaço real deixassem a desejar.
Figura 4: Croqui nº 7

Mesmo apresentando razoabilidade no que se refere à noção de espaço e localização – já que foram destacados pontos básicos como a escola e a casa – houve ausência de referências mais claras e objetivas, que facilitariam a compreensão do leitor em relação ao contexto espacial. Quanto à orientação e trajeto, o resultado foi pior: o croqui nº 7 mostrou somente uma linha entre os dois pontos principais. Não indicou detalhes como curvas ou marcos de percurso, revelando assim um entendimento limitado do espaço vivido e uma simplicidade que não favorece a leitura cartográfica.
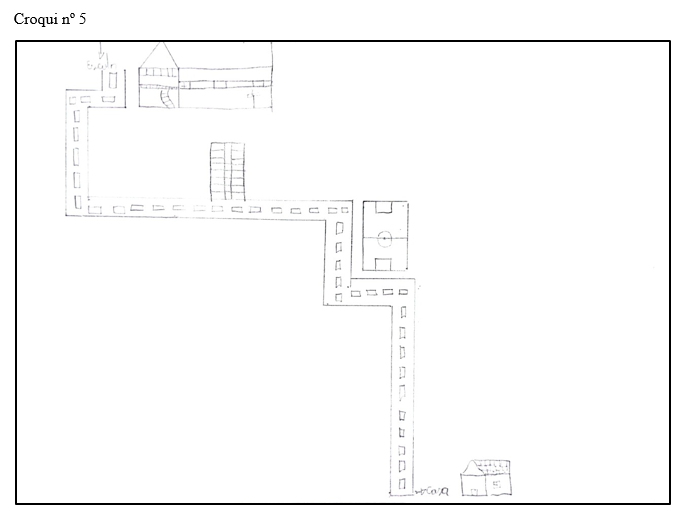
Figura 5: Croqui nº 23

Já o croqui de nº 23 teve o resultado mais satisfatório dentre os demais, pois juntou com maior consistência os três critérios avaliativos. Em relação à criatividade, o desenho apresentou um ótimo empenho, utilizando recursos gráficos que enriqueceram o croqui, como o cuidado nos traços, a diferenciação entre os elementos do espaço e a preocupação com um acabamento visual mais elaborado. Esse aspecto contribuiu para tornar o desenho mais comunicativo e próximo da realidade cotidiana.
A noção de espaço e localização foi bem representada, já que o aluno conseguiu situar não apenas os pontos de partida e chegada, mas também incluir elementos intermediários do percurso, como ruas, estabelecimentos e pontos de referência, construindo um panorama espacial mais completo. No que diz respeito à orientação e trajeto, o croqui nº 23 destacou-se ao representar o deslocamento de forma clara e lógica, evidenciando curvas, cruzamentos e a sequência de passos que o estudante realiza em seu cotidiano, o que revela uma boa internalização dos conceitos trabalhados em aula sobre orientação e representação cartográfica.
Esse contraste reforça que, enquanto o croqui nº 7 revela dificuldades na apropriação dos conteúdos de Cartografia e Geografia, o croqui nº 23 mostra como a atividade pode alcançar resultados positivos quando o aluno consegue articular criatividade, memória espacial e domínio básico das noções cartográficas. A comparação, portanto, revela não apenas diferenças individuais, mas também a importância de reforçar, no ensino, práticas que estimulem tanto a clareza técnica da representação quanto a expressividade gráfica e criativa.
Analisando de forma geral, os croquis foram úteis para compreender a forma na qual os alunos percebem e organizam mentalmente o espaço que vivenciam e percorrem diariamente. Isso reforça que a utilização de atividades práticas e lúdicas no ensino são importantes e úteis para reforçar o saber da Geografia, neste caso, em especifico da Cartografia. A conexão direta com a realidade do aluno somada a uma proposta de atividade que envolva seu senso criativo pode promover um desenvolvimento de habilidades cartográficas, que se desenvolvidas desde o ensino fundamental, podem ser promissoras futuramente para diminuir o déficit de conhecimento deste componente geográfico.
CONCLUSÃO
O desenvolvimento deste trabalho, a partir do uso de croquis como exercício de Cartografia escolar, ressaltou que uma maior interação, contextualização e proximidade das práticas pedagógicas à vivência dos alunos podem trazer mais eficácia e significância ao ensino da Geografia. Confeccionar croquis como proposta lúdica permitiu aos discentes expor no papel seus entendimentos sobre lugar e espaço vivido, além de permitir ao docente avaliar o nível de compreensão sobre conceitos como localização e orientação.
Atestou-se que a partir da aplicação desta metodologia ainda restou lacunas no domínio de noções cartográficas básicas entre alguns alunos. Com isso, revela-se necessário um maior investimento no ensino de conteúdos ligados a leitura e produção de mapas, além de orientação e legendas. Entretanto, o exercício mostrou certo êxito ao incentivar os estudantes seus pensamentos críticos e sua percepção espacial em relação a seu lugar de vivência.
Assim, os professores devem adotar métodos pedagógicos que inovem, principalmente no que tange à elaboração dos croquis, com base no currículo previsto pela BNCC, que direciona para a construção de competências envolvidas com percepção e representação espacial. Deste modo, a potencial no ensino da Geografia e o interesse dos alunos pela leitura do espaço serão melhor aproveitados, qualificando assim suas noções enquanto cidadãos e seres críticos.
Afere-se que a Cartografia deve ser utilizada não só como mero conteúdo técnico, mas também como uma ferramenta lúdica, pedagógica e didática que permita fazer junção da dicotomia teórica e prática. Confeccionar croquis representa viabilidade a isso, pois valoriza o que o aluno entenda qual o seu espaço no mundo e ser a porta de entrada para poder interpretá-lo de diversas maneiras e partir de vários vieses.
A pesquisa demonstrou que atividades como confecção de croquis influenciam a autonomia intelectual os alunos, já que permitem uma conexão entre memória, vivência e conceitos da Geografia. Expressando no desenho sua compreensão de espaço vivido, o estudante não somente reproduz trajetos, como também apresenta um meio de entender a relação sociedade-cultura consigo mesmo. Nesta ótica, o ensino da Cartografia se torna mais significativo, pois integra o conhecimento escolar ao saber pessoal do aluno.
O uso de croquis deve ser visto como uma estratégia de ensino atrelada a um potencial lúdico e pedagógico, permitindo o estimulo à criatividade e à capacidade de representar o espaço. Além do mais, também pode ser utilizado como um instrumento e avaliação para o professor, identificando tanto avanços como déficits no que tange à aprendizagem do conteúdo.
Deste modo, pode-se concluir que o ensino da Geografia, aliado aos princípios da Cartografia e afins, tem a possibilidade de formar cidadãos mais lúcidos em relação ao espaço em que vivem, aptos a compreender e a intervir no mesmo de forma subjetiva e concreta.
REFERÊNCIAS BIBLIOGRÁFICAS
ALBUQUERQUE, Rosimeire Rozendo de. A cartografia no ensino de Geografia. Alagoas: UFAL, 2021.
FERREIRA JÚNIOR, Dioniel Barbosa; SANTOS, Robson Alves dos. Relato de Experiência no Estágio Supervisionado em Geografia: o croqui cartográfico como recurso metodológico no ensino básico. Revista Geografia em Atos (Online), v. 6, n.2, Ano 2022. p. 45-63
FERRO, Sérgio. Cartografia Digital no Ensino de Geografia: possibilidades pedagógicas e desafios metodológicos. Revista Brasileira de Educação em Geografia, v. 1, n. 1, p. 45- 60, 2011.
GIL, Antônio Carlos. Como elaborar projetos de pesquisa. São Paulo: Editora Atlas, 1987.
LACOSTE, Yves. In: CHATELET, François (org.). A Filosofia das Ciências Sociais. Rio de Janeiro: Zahar, 1981.
MERLEAU-PONTY, Maurice. Fenomenologia da percepção. São Paulo: Editora Martins Fontes, 2006.
PIAGET, Jean. A formação do símbolo na criança: imitação, jogo e sonho, imagem e representação. Rio de Janeiro: Zahar, 1975.
PISSINATI, Mariza Cleonice; ARCHELA, Rosely Sampaio. Fundamentos da alfabetização cartográfica no ensino de geografia. Geografia – v. 16, n. 1, jan./jun. 2007 – Universidade Estadual de Londrina, Departamento de Geociências
RELPH, Edward. Place and Placelessness. London: Pion, 1976.
RICHTER, Denis; MARIN, Fátima Aparecida Dias Gomes; DECANINI, Mônica Modesta Santos. Ensino de geografia, espaço e linguagem cartográfica. Mercator – Revista de Geografia da UFC, vol. 9, n. 20, set-dez, 2010, pp. 163-178
SANTOS, Milton. A natureza do espaço: técnica e tempo, razão e emoção. São Paulo: Editora Hucitec, 2002.
SIMIELLI, Maria Elena Ramos. Cartografia no ensino fundamental e médio. In: CARLOS, Ana Fani Alessandri (org.). A Geografia na sala de aula. São Paulo: Contexto, 1999. p. 92-108.
TESSLER, Leandro. Cartografia na educação: conceitos, práticas e desafios. Porto Alegre: Editora UFRGS, 2015.
1Acadêmico de Licenciatura de Geografia da Universidade Federal do Amapá
2Professor vinculado ao Departamento de Filosofia e Ciências Humanas da Universidade Federal do Amapá
APENDICE






















