REGISTRO DOI: 10.69849/revistaft/fa10202509101734
Christiane Alves Royo Escribas Rezende1
RESUMO
O presente trabalho trata-se de Inspeção Predial no quesito acessibilidade em espaço comum condominial. Tem como objetivo a apresentação conceitual e visual das principais condições da área comum. O edifício está localizado em bairro predominantemente residencial e com comércio diversificado na cidade de Belo Horizonte/ Minas Gerais. O objeto deste estudo é um condomínio residencial composto por quinze pavimentos. As considerações serão feitas em um ambiente construído para atender os condôminos que apresentam algum tipo de mobilidade reduzida de diferentes origens e causas assim como idosos, crianças, gestantes, deficientes ou não. A metodologia utilizada tange-se pela pesquisa bibliográfica teórico-interpretativa em livros e periódicos utilizando-se do método dedutivo, partindo-se de uma perspectiva ampla para uma concepção restrita acerca do tema problematizado. Pelo exposto, este trabalho objetiva a investigar as condições físicos necessárias à mobilidade dos moradores e visitantes dos espaços comuns do condomínio e que permita a acessibilidade dos indivíduos em questão. Foram realizadas pesquisas de campo através da investigação com exame visual e registros fotográficos da edificação que fornece dados importantes para enriquecimento dos fatos. As hipóteses levantadas através desta Inspeção Predial estabelecem um estudo exploratório da mobilidade na edificação com um recorte bem específico da acessibilidade nas áreas consideradas comuns. Por fim, concluiu-se que um condomínio para ser considerado acessível, deve efetivar a prática construtiva para a universalidade.
Palavras-chave: Inspeção Predial. Acessibilidade. Mobilidade
1. INTRODUÇÃO
O tema proposto para esse trabalho se insere na área do conhecimento de Avaliações e Perícias de Engenharia. O interesse por esse assunto surgiu em face do considerável número de edificações com ausência total ou parcial de acessibilidade conforme normatização pertinente e que determina o recurso necessário a plena mobilidade em espaços públicos e privados com áreas comuns na qual se apresenta a Inspeção referenciada.
Nos últimos anos, o acesso imediato a coisas, pessoas e lugares tornou-se quesitos fundamentais para a composição dos métodos de avaliação de imóveis assim como aquisição dos mesmos em locais urbanizados ou urbanizáveis.
Nesse contexto, o crescimento imobiliário faz surgir novos empreendimentos cada vez maiores e tecnológicos atraindo novos investidores e moradores interessados pela qualidade de vida.
Diante desse cenário, a pergunta que se faz para problematizar o tema é: Por que as áreas comuns das edificações de uso multifamiliar não estão projetadas e/ou construídas para receberem a diversidade de condôminos por meio da acessibilidade universal ou adaptável efetivando um espaço de todos ao fim a que se destina?
Pelo exposto, o que se objetiva com esse artigo é identificar e analisar por meio da Inspeção Predial no quesito acessibilidade as áreas comuns da edificação proposta como objeto deste trabalho que é o – Edifício CAP COD – localizado na região metropolitana de Belo Horizonte.
As hipóteses levantadas como referencial para este estudo estão nas condições de interligação das áreas comuns do condomínio a outras áreas de uso coletivo ou não e que atendam as normas pelo viés dos três pilares que corroboram com a acessibilidade – mobilidade com conforto, segurança e autonomia.
Finalmente, a guisa da conclusão, apresentar-se-á como arrimo das constatações da Inspeção predial, revisão literária, registro fotográfico traçando as linhas fundamentais das concepções técnicas propostas a contribuir para efetivação do entendimento do tema.
2. REVISÃO BIBLIOGÁFICA DOS PRINCIPAIS CONCEITOS SOBRE ACESSIBILIDADE
Buscando elucidar os principais conceitos e terminologias sobre acessibilidade em contexto macro, faz-se necessário apreciar algumas considerações acerca do assunto.
Assim, para a garantia mínima do entendimento, segue o levantamento dos principais tópicos da matéria feita por especialistas que poderão ser usados para responder o porquê das áreas comuns das edificações de uso multifamiliar não serem projetadas e/ou construídas para receberem a diversidade de condôminos por meio da acessibilidade universal ou adaptável efetivando um espaço para todos assim como, o quê a edificação precisa ter para se tornar acessível.
Segundo Eduardo Ronchetti de Castro (2022:32), “devemos eliminar todas as barreiras físicas e de atitude para que todas as pessoas tenham condições de igualdade de oportunidades no acesso e no uso dos ambientes” Assim, é imperioso a distinção entre pessoa com deficiência e pessoa com mobilidade reduzida. Segundo a Lei 13.146/2015 que Institui a Lei Brasileira de Inclusão da Pessoa com Deficiência, estabelece que “considera-se pessoa com deficiência aquela que tem impedimento de longo prazo de natureza física, mental, intelectual ou sensorial” tornando cada obstáculo, “espécie de barreira que obstrui a participação plena e efetiva de suas atividades em igualdade de condições”. As pessoas com mobilidade reduzida são aquelas que “por qualquer motivo, tenham dificuldade de movimentação, incluindo a pessoa idosa, gestante, lactante, pessoa com criança de colo e obeso”. O tipo de deficiência também faz parte do entendimento macro, destacando a visual, física, auditiva e intelectual. Não se pretende esgotar todas as leis, normas e regulamentações, mas as principais assim como se destaca alguns marcos legais. Sobre o assunto, destacam-se:
O Decreto nº 5.296/2004 que regulamenta as Leis 10.048/2000 (Prioridade de atendimento) e a Lei 10.098/2000 (Acessibilidade para pessoas deficientes ou com mobilidade reduzida) estabelece em seus artigos: Art. 8º. Para os fins de acessibilidade, considera-se: […] VIII – edificações de uso privado: aquelas destinadas à habitação, que podem ser classificadas como unifamiliar ou multifamiliar; Art.10. A concepção e a implantação dos projetos arquitetônicos e urbanísticos devem atender aos princípios do desenho universal, tendo como referências básicas as normas técnicas de acessibilidade da ABNT; Art.11. A construção, reforma ou ampliação de edificações de uso público ou coletivo, ou a mudança de destinação para estes tipos de edificação, deverão ser executadas de modo que sejam ou se tornem acessíveis à pessoa portadora de deficiência ou com mobilidade reduzida (BRASIL, 2000).
O Decreto nº 6.949/2009 que Promulga a Convenção Internacional sobre os Direitos das Pessoas com Deficiência […] Os Estados Partes da presente Convenção […] Reconhecendo que a deficiência é um conceito em evolução e que a deficiência resulta da interação entre pessoas com deficiência e as barreiras devidas às atitudes e ao ambiente que impedem a plena e efetiva participação dessas pessoas na sociedade em igualdade de oportunidades com as demais pessoas […] Reconhecendo também que a discriminação contra qualquer pessoa, por motivo de deficiência, configura violação de dignidade e do valor inerentes ao ser humano, […] Reconhecendo a importância da acessibilidade aos meios físico, social, econômico e cultural, á saúde, à educação e à informação e comunicação, para possibilitar às pessoas com deficiência o pleno gozo de todos os direitos humanos e liberdades fundamentais (BRASIL, 2009).
Lei Federal nº 13.146/2015 – Lei Brasileira de Inclusão da Pessoa com Deficiência: Art. 1º […] destinada a assegurar e a promover, em condições de igualdade, o exercício dos direitos e das liberdades fundamentais por pessoa com deficiência, visando à sua inclusão social e cidadania. Art. 32. Nos programas habitacionais, públicos ou subsidiados com recursos públicos, a pessoa com deficiência ou seu responsável goza de prioridade na aquisição de imóvel para moradia própria […] em caso de edificação multifamiliar, garantia de acessibilidade nas áreas de uso comum e nas unidades habitacionais o piso térreo e de acessibilidade ou adaptação razoável nos demais pisos. […] Art. 53. A acessibilidade é direito que garante à pessoa com deficiência ou com mobilidade reduzida viver de forma independente e exercer seus direitos de cidadania e de participação social; Art. 56. A construção, a reforma, a ampliação ou a mudança de uso de edificações abertas ao público, de uso privadas de uso coletivo deverão ser executadas de modo a serem acessíveis. […] Art. 57. As edificações públicas e privadas de uso coletivo já existente devem garantir acessibilidade à pessoa com deficiência em todas as dependências e serviços, tendo como referência as normas de acessibilidade vigentes. […] Art. 58. O projeto e a construção de edificação de uso privado multifamiliar devem atender aos preceitos de acessibilidade, na forma regulamentar. […] Art. 121. […] os direitos, os prazos e as obrigações, devem ser aplicados em conformidade com as demais normas internas e acordos internacionais vinculantes sobre a matéria. […] (BRASIL, 2015).
Assim, é primordial a análise criteriosa por profissional habilitado e qualificado para trazer à baila o que preconiza os principais instrumentos norteadores acerca da metodologia técnica a ser aplicada para que a acessibilidade e o desenho universal sejam convocados e aplicados às construções ao fim a que se destina.
3. CONSIDERAÇÕES GERAIS DA EDIFICAÇÃO PROPOSTA PARA ESTUDO DE CASO
O imóvel, objeto de estudo, está localizado no município de Belo Horizonte, Minas Gerais, conforme observado:

Fonte: Google Earth (2022)
A área de influência da ocupação circunvizinha conta atualmente com uma população urbana de classe média Trata-se de prédio de uso multifamiliar, com idade aproximada de 20 anos. O Edifício Cape Cod, localizado em área nobre de Belo Horizonte é dotado de 13 pavimentos de apartamentos tipo e dois pavimentos de apartamento de cobertura duplex, totalizando 56 apartamentos com quatro apartamentos por andar. As fachadas são revestidas em cerâmica. As esquadrias são de alumínio anodizado fosco natural. O condomínio é dotado de áreas de lazer. O primeiro subsolo possui 74 vagas de garagem cobertas, reservatórios de água inferiores, casa de máquinas para duto de pressurização, instalação sanitária, copa para funcionários e depósito. O segundo subsolo possui 74 vagas de garagem cobertas, depósito de lixo e depósito para o condomínio.
No primeiro pavimento/pilotis encontra-se: guarita, instalação sanitária, hall social, home office, salão de festas com terraço, cozinha, despensa, instalações sanitárias, área de lazer coberta, espaço gourmet, instalações sanitárias para salão de jogos, sauna, ducha, repouso, massagem, ginástica, espaço infantil. A área externa conta também com piscina, playground, quadra esportiva, quadra de tênis, depósito de gás e 27 vagas de garagem.
O condomínio está equipado com sistema de interfonia, sistema de segurança com câmeras, dois elevadores, gás canalizado, sistema anti-incêndio, portão eletrônico, central de intercomunicação, shafts hidráulicos, shaft de técnicos de serviço e SPDA.
A região apresenta infraestrutura completa, tais como, sistema viário, redes de água, luz, telefone, coleta de resíduos, universidades, comércios, padarias, escolas, supermercados, salões de beleza, shopping centers, redes bancárias, correios, restaurantes, quadras poliesportivas, academias, igrejas, etc.
A investigação proposta como estudo de caso desenvolve-se com a atuação do profissional in loco resultando em laudo técnico de Inspeção Predial em área comum do condomínio que segue:

O trabalho tem como recorte específico a acessibilidade que fundamenta as decisões garantidoras à integridade daqueles que utilizam as áreas comuns do condomínio.
4. METODOLOGIA E EXAMES
A Vistoria foi elaborada em conformidade com a NBR 13.752: Perícias de Engenharia na Construção Civil da Associação Brasileira de Normas Técnicas – ABNT assim como a NBR 16.747 Inspeção Predial conjuntamente com a NBR – 9050/2020 que trata da Acessibilidade entre outras como a Lei de Inclusão Federal NBR 13.146/2015, que estabelece os critérios para promoção da acessibilidade. Foram utilizados também leis, decretos, resoluções estaduais, municipais. Pautando-se também sob o Código de Ética Profissional da Engenharia do CREA, do Instituto Brasileiro de Avaliações e Perícias – IBAPE MG, bem como, do Conselho Federal de Engenharia, Arquitetura e Agronomia – CONFEA, que no uso das suas atribuições confere a todos os profissionais a observância e cumprimento do referido Código assim como os que corroboram com o tema. Para estabelecer e garantir o exercício das liberdades fundamentais nos valemos da Lei Brasileira da Inclusão da Pessoa com Deficiência nº13.136/2015 que em seu artigo 56 parágrafo primeiro trata da Anotação de Responsabilidade Técnica (ART) assim como segue:
Art. 56 § 1º: As entidades de fiscalização profissional das atividades de engenharia, de arquitetura e correlatas ao anotarem a responsabilidade técnica de projetos, devem exigir a responsabilidade profissional declarada de atendimento às regras de acessibilidade previstas em legislação e em normas técnicas pertinentes. (BRASIL, 2015).
Vale destacar o artigo 60 parágrafos primeiro e segundo da Lei Federal 13.146:2015, como segue:
Art.60 § 1º – A concessão e a renovação de alvará de funcionamento para qualquer atividade são condicionadas à observação e à certificação das regras de acessibilidade. Art. 60 § 2º – A emissão de carta de habite-se ou de habilitação equivalente e sua renovação quando esta tiver sido emitida anteriormente as exigências de acessibilidade, é condicionada à observação e á certificação das regras de acessibilidade. (BRASIL, 2015).
A análise da edificação foi realizada mediante observação criteriosa nas áreas comuns do imóvel assim como nos elementos e condições que o constituíam. Iniciou-se os trabalhos com a inspeção visual, seguidas de registros fotográficos da calçada, das entradas para edificação, guarita porteiro, sanitários, vagas de estacionamento, garagens, elevadores, hall de entrada para todas as áreas de circulação, espaço gourmet, playgrounds, salão de festas, academia, espaço kids, sauna, quadra de esportes, etc. Os objetivos da Inspeção Predial na área comum do condomínio estão na apresentação das inadequações de acessibilidade como as inconformidades construtivas, mobiliário, barreiras físicas e de atitudes verificadas na data da vistoria, tendo como base os critérios e parâmetros técnicos preconizados na legislação vigente.
Observando os marcos legais valemo-nos da Lei Federal 13.146/2015 acerca do que se entende por acessibilidade assim como segue:
Possibilidade e condição de alcance, percepção e entendimento para utilização, com segurança e autonomia, de espaços, mobiliários, equipamentos urbanos, edificações, transportes, informação e comunicação, inclusive seus sistemas e tecnologias, bem como outros serviços e instalações abertos ao público, de uso público ou privado de uso coletivo, tanto na zona urbana como na rural, por pessoa com deficiência ou mobilidade reduzida. (BRASIL, 2015).
Segundo a Cartilha de Inspeção Predial em Acessibilidade do Instituto Brasileiro de Avaliações e Perícias de São Paulo – IBAPE/SP define que para o imóvel seja considerado acessível deve oferecer:
Garantia de acesso ao interior do imóvel. Garantia de acesso a todas as áreas de uso comum ou abertas ao público, no interior do imóvel. Ter balcão de atendimento acessível (isso inclui as portarias – adaptar a condição para atendimento a visitante cadeirante ou ainda a condição de morador deficiente poder de forma igualitária receber documentos e pizzas. Dispor de sanitários acessíveis. Dispor de vagas acessíveis. Dispor de sinalização visual e tátil. Em caso de edificações com elevadores, dispor de pelo menos um elevador acessível. (CARTILHA IBAPE/SP: 2016 / 2017:11).
Ainda pela Cartilha do IBAPE/SP segue para conhecimento os princípios básicos do desenho universal:
Uso Equitativo- propiciar o mesmo significado de uso para todos; eliminar uma possível segregação e estigmatização; promover o uso com privacidade e conforto, sem deixar de ser um ambiente atraente ao usuário. Uso Flexível – deve oferecer diferentes maneiras de uso; possibilitar o uso para destros e canhotos; facilitar a precisão e destreza do usuário e possibilitar o uso de pessoas com diferentes tempos de reação e estímulos. Uso Simples e Intuitivo – uso de fácil compreensão, dispensando, para tal, experiência, conhecimento, habilidades lingüísticas ou grande nível de concentração por parte das pessoas. (CARTILHA IBAPE/SP: 2016 / 2017:12).
Para complementar o tema que de forma oblíqua sustenta a importância da sistematização, segue a investigação dos dados e fatos escolhidos para o estudo de caso como assunto destaque.
5. ANÁLISE DAS INFORMAÇÕES COLETADAS NA VISTORIA – ACESSIBILIDADE
O acervo fotográfico das áreas destacadas como complemento qualificativo e caracterizador das informações colhidas durante a vistoria, estarão destinados a apreciação das evidências das não conformidades no quesito acessibilidade com o substrato necessário e útil à elucidação do estudo proposto. Tendo como base conceitual e exemplificativa, Eduardo Ronchetti de Castro que leciona com maestria:
O que uma edificação deve ter para ser acessível: (1) Calçada. (2) Todas as entradas acessíveis. (3) Rota acessível. (4) Balcão de atendimento acessível. (5) sanitário acessível. (6) Sinalização visual e tátil. (7) Vagas de estacionamento acessíveis e vagas para pessoas idosas. (8) Elevador acessível, onde for obrigatório uso do elevador. (CASTRO, 2022: 30).
Em função do exposto segue os principais aspectos abordados e eternizados pelo acervo fotográfico do autor. A primeira delas é a calçada.

Fonte: Autor (2023)

Figura 4 – Elementos dos passeios
Fonte: Cartilha Ilustrativa – Padrão de Passeios de Belo Horizonte
Passeio de piso cimentado com superfície regular, contínua, boa textura sem irregularidades ou rachaduras.
O segundo aspecto importante para uma edificação ser acessível é que todas as entradas sejam acessíveis. Neste sentido segue as informações coletadas da entrada principal do condomínio:

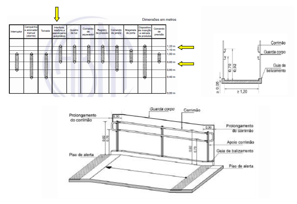
As alturas para os controles recomendados para posicionamento do interfone entre outros comandos estão disponibilizadas pela NBR 9050/2020 assim como segue:

Fonte: ABNT NBR 9050:2020
Neste contexto, a altura de 1,60m na qual foi instalado o interfone não atende a norma, pois o mesmo está posicionado acima da altura limite de 1,20m estabelecido conforme demonstrado acima. A rampa de acesso deve ser tratada como corredor e a largura deve atender o item 6.11.1 da NBR 9050/2020 como segue:
Os corredores devem ser dimensionados de acordo com o fluxo de pessoas, assegurando uma faixa livre de barreiras ou obstáculos, conforme 6.12.6. As larguras mínimas para corredores em edificações e equipamentos urbanos são: a) 0,90 m para corredores de uso comum com extensão até 4,00m; b) 1,20m para corredores de uso comum com extensão até 10,00m; 1,50m para corredores com extensão superior a 10,00m; c) 1,50m para corredores de uso público; d) maior que 1,50m para grandes fluxos de pessoas, conforme aplicação da equação apresentada em 6.12.6 (BRASIL, 2020).
Portanto, a largura (L) da rampa recomendável é de 1,50m, sendo o mínimo admissível de 1,20m. Quando não for possível adaptar a largura da rampa em edificações existentes admite-se a largura mínima de 0,90 m e com segmento de no máximo 4,00 m de comprimento. Nesse contexto, a rampa do condomínio está de acordo com a largura de 1,50m. Toda rampa deve possuir corrimão em duas alturas e guia de balizamento. A rampa de acesso ao condomínio não atende na totalidade a norma, contudo é adaptável.

Fonte: ABNT NBR 9050:2020
A porta de entrada do condomínio não atende a norma NBR 9050/2020, pois, a folha é pesada impossibilitando ser operada com um único movimento.

Fonte: Autor (2023)
As sinalizações das portas e paredes de vidro localizadas nas áreas de circulação devem estar identificadas por faixas instaladas conforme a norma supracitada. A porta para ser considerada acessível além de ter um vão livre de 80 cm deve ter um espaço livre na lateral de 30 cm para aproximação da porta e 1,20 m na frente da porta para que haja o movimento de deslocamento do usuário. “Caso as portas não tenham os espaços de aproximação, elas devem ser equipadas com sistema de abertura e fechamento automáticos através de botoeiras ou sensores de presença” (CASTRO, 2022:30).
Assim seguem as referências da NBR 9050/2020:

Fonte: ABNT NBR 9050:2020
O hall de entrada abriga a guarita do porteiro e a porta de vidro dá acesso ao hall social e outras dependências do condomínio. Com relação á portaria, as barreiras que dificultam o acesso interno com autonomia criam situações que impedem a efetiva circulação das pessoas com igualdade de oportunidade.

Nesse contexto, segue detalhes de como o balcão de atendimento deve garantir a aproximação e o giro de no mínimo 180º da cadeira ou qualquer outro tipo de deficiência. A NBR 9050/2020 trata das relações de altura e profundidade para alcance manual sem deslocamento de tronco:

Fonte: ABNT NBR 9050:2020
Os caminhos que levam aos elevadores e a outras áreas que interligam o condomínio não estão sinalizados. Para que um condomínio seja considerado acessível este item não pode faltar, pois pessoas com deficiência visual ou com baixa visão poderão sentir algum tipo de dificuldade para se locomover com autonomia e segurança.

Fonte: Autor (2023)
A sinalização dos elevadores “além do piso tátil de alerta na frente da porta dos elevadores, os painéis de chamada de elevadores devem ter informações em relevo em braile e estar compatíveis com a ABNT NM 313 e ABNT NBR ISSO 9386-1” (CASTRO, 2022:169). A norma de acessibilidade determina que a comunicação deve acontecer através de no mínimo dois sentidos, ou seja, visual e tátil ou visual e sonora indicando o número do pavimento para pessoas com deficiência visual. Portanto, a sinalização dos elevadores dos dois lados dos batentes, precisam de adequação observando o que está estabelecido no Decreto Federal 5.296:2004:
Art. 27. A instalação de novos elevadores ou sua adaptação em edificações de uso público ou de uso coletivo, bem assim a instalação em edificação de uso privado multifamiliar a ser construída, na qual haja obrigatoriedade da presença de elevadores, deve atender aos padrões das normas técnicas de acessibilidade da ABNT. §1º No caso da instalação de elevadores ou da troca dos já existentes, qualquer que seja o número de elevadores da edificação de uso público ou de uso coletivo, pelo menos um deles terá cabine que permita acesso e movimentação cômoda de pessoa portadora de deficiência ou com mobilidade reduzida, de acordo com o que especifica as normas técnicas de acessibilidade da ABNT. §2º Junto às botoeiras externas do elevador deverá estar sinalizado em braile em qual andar da edificação a pessoa se encontra. §3º Os edifícios a serem construídos com mais de um pavimento além do pavimento de acesso, á exceção das habitações unifamiliares e daquelas que estejam obrigadas à instalação de elevadores por legislação municipal, deverão dispor de especificações técnicas e de projeto que facilitem a instalação de equipamento eletromecânico de deslocamento vertical para uso das pessoas portadoras de deficiência ou mobilidade reduzida. (BRASIL, 2004)
Os corredores internos da área comum que estabelecem ligação aos demais locais como espaço kids, sauna e espaço de massagem, também deverão receber o mesmo tratamento quanto à largura das portas que não permitem o acesso por cadeirantes, corredores estreitos sem condição de giro 180º por cadeira de rodas, portas envidraçadas sem faixa visual, falta de sinalização nos batentes e puxadores inadequados.

Outra questão recorrente é a falta de adequação dos sanitários localizados na área comum. Assim segue o que preleciona o especialista em acessibilidade Eduardo Ronchetti de Castro:
1. O sanitário acessível deve ter entrada independente, ou seja, não pode estar dentro de sanitário coletivo. 2. A porta do sanitário acessível sempre abre para o lado de fora do sanitário. 3. Proibido o uso de bacia sanitária com abertura frontal. 4. Sanitários acessíveis podem ser unissex. (CASTRO, 2020: 212)
Nesse sentido, segue registro dos sanitários da área comum do condomínio.

Fonte: Autor (2023)
É de se notar que, as portas dos sanitários da área comum do condomínio abrem para o lado de dentro, a bacia sanitária está com 40cm na sua altura final, a bacia utiliza caixa acoplada, mas, o acionamento está faceado à louça sanitária, as dimensões mínimas internas do sanitário não permitem a manobra de giro e as áreas de aproximação no lavatório não estão livres de obstáculos assim como a posição dos objetos, papeleiras, barras e espelho também não estão adequados. Neste sentido, segue orientações para entendimento:
[…] para sanitários acessíveis devem garantir uma área de giro de no mínimo 1,50m de diâmetro para sanitários acessíveis em edificações novas a serem construídas. Para sanitários acessíveis em edificações já construídas a área de giro poderá ser menor que, garantindo um giro de 180º, com espaço livre em seu interior de 1,20m por 1,50m. […] A bacia sanitária deverá apresentar algumas características importantes para ser considerada acessível como, por exemplo, a sua altura final deverá ser de 45 cm sem assento sanitário e de 46 cm considerando o assento sanitário e ambos não podem ter abertura frontal. […] no caso de utilizar bacia acoplada, o acionamento deve ser feito através de uma alavanca ou um botão com acionamento externo à face da louça, de forma a permitir o seu acionamento por pessoas com dificuldade de movimento nos dedos ou nas mãos.[…]cabides e porta objetos devem ser instalados a uma altura entre 80cm até 1,20m do piso.[…] A porta do sanitário deve atender à NBR9050:2020[…]A porta terá maçaneta do tipo alavanca […] Instalação de uma faixa de proteção contra impactos para proteger a porta contra os impactos de cadeiras de roda, muletas e andadores. (CASTRO, 2020:216- 218).
Assim, em se tratando de sanitário da área comum para atendimento dos condôminos e visitantes, não estão de acordo com as normas de acessibilidade. Segue as orientações da seguinte forma:

Figuras 18 – Deslocamento frontal, medidas mínimas de sanitário acessível, detalhes porta
Fonte: NBR 9050:2020
Outro quesito que não pode faltar são os 2% do total de vagas de estacionamento demarcadas para pessoas com deficiência, idosos ou mobilidade reduzida. Com rota de acesso que facilite o deslocamento com segurança e autonomia pelo condomínio. Nota-se que o estacionamento em questão utiliza o piso intertravado e não há vagas demarcadas acessíveis.

Figura 19 – Estacionamento do condomínio com piso intertravado
Fonte: Autor 2023
A exigibilidade das vagas acessíveis está clara no artigo18 do Decreto Federal 5296:2004 como segue:
A construção de edificações de uso privado multifamiliar e a construção, ampliação ou reforma de edificações de uso coletivo devem atender aos preceitos da acessibilidade na interligação de todas as partes de uso comum ou abertas ao público, conforme os padrões das normas técnicas de acessibilidade da ABNT e também estão sujeitos os acessos, piscinas, andares de recreação, salão de festas e reuniões, saunas e banheiros, quadras esportivas, portarias, estacionamentos e garagens, entre outras partes das áreas internas ou externas de uso comum das edificações de uso privado multifamiliar e as das de uso coletivo (BRASIL, 2004).
A área da piscina está equipada por guarda corpo ao longo da escada lateral e rampa de acesso ao deck principal. Neste espaço estão localizadas as piscinas de uso adulto e outra para crianças. Constatamos que o guarda corpo é inadequado para o quesito isolamento e segurança para o acesso de crianças visto que, os posicionamentos das barras estão no sentido horizontal ao longo do barramento facilitando a escalada até as piscinas. Para aqueles que possuem mobilidade reduzida, deficientes visuais, cadeirantes entre outros, encontram obstáculos na rampa como abertura da cancela para o lado de dentro da rampa, sem sinalização tátil, sonora ou visual. As piscinas não possuem equipamentos alternativos para o acesso à água.

Fonte: Autor 2023
Segue para apreciação o posicionamento do Instituto Brasileiro de Avaliações e Perícias – IBAPE/SP em parceria com o Conselho de Arquitetura e Urbanismo de São Paulo – CAU/SP que trata de Inspeção Predial – Acessibilidade, para o quesito piscinas:
O piso no entorno das piscinas não pode ter superfície escorregadia ou excessivamente abrasiva. As bordas, os degraus de acesso à água, corrimãos e barras de apoio devem ter acabamento arredondado. O acesso à água deve ser garantido através de uma das quatro alternativas: a) Bancos de transferências (escadas) – devem ter altura entre 0,40 e 0,48 m; extensão de no mínimo 1,20 m e profundidade de 0,45 m e ter barras para facilitar a transferência para piscina. […] b) degraus submersos – Os degraus submersos devem ter o piso variando de 0,35m a 0,43m e espelho de no máximo 0,20m […] c) rampas submersas – a inclinação das rampas de acesso à água pode ser de no máximo 8,33%[…] d) equipamentos de transferência […]. Recomenda-se a instalação de barras de apoio nas bordas das piscinas, na altura do nível da água, em locais que não interfiram no acesso à água, conforme ABNT NBR 9050/2015. (CARTILHA IBAPE/SP: 2016 / 2017:55).
A rota de fuga do edifício é outro quesito a ser observado.
Constatou-se irregularidades no corredor de acesso a escada como as lixeiras e o carrinho com material de limpeza que obstruem a passagem, dificultando a locomoção segura e o resgate emergencial. Os corrimãos da escada estão interrompidos e não há sinalização tátil com relevo em Braille na geratriz superior do mesmo.

Fonte: Autor 2023
Segue o que preleciona a Cartilha do IBAPE/SP como fonte de recurso a ser observado:
As portas de corredores, acessos, áreas de resgate, escadas de emergência e descargas integrantes de rotas de fuga acessíveis devem ser dotadas de barras antipânico […]. Quando em ambientes fechados, as rotas de fuga devem ser sinalizadas e iluminadas com dispositivos de balizamento[…]. Quando as rotas de fuga incorporarem escadas ou elevadores de emergência devem ser previstas áreas de resgate com espaço reservado e demarcado para o posicionamento de pessoas com cadeiras de rodas[…]. A rota acessível é um trajeto contínuo e sinalizado, que conecta os ambientes externos e internos de espaços e edificações, e pode ser usada de forma autônoma e segura para todas as pessoas […]. A rota acessível interna incorpora corredores, pisos, rampas, escadas, elevadores e outros elementos da circulação comum. As edificações residenciais multifamiliares, condomínios ou mistas e conjuntos habitacionais devem ser acessíveis em suas áreas de uso comum […]. A rota acessível pode coincidir com a rota de fuga, porém, a todo momento deve estar desobstruída. A área de resgate é utilizada para que as pessoas impossibilitadas de locomoção permaneçam seguras em caso de sinistro até o atendimento de equipe de socorro e deve […] estar localizada fora do fluxo principal […] garantir área mínima de circulação e manobra para rotação de 180º, e, quando localizada em nichos deve […] ser ventilada; ser provida de dispositivo de emergência ou intercomunicador; ser devidamente sinalizada. (CARTILHA IBAPE/SP: 2016 / 2017:28-29).
Conforme exemplos:

Fonte: CARTILHA IBAPE/SP: 2016 / 2017
Segue para conhecimento o croqui da planta de projeção do edifício vistoriado por meio de inspeção predial com o tema proposto em acessibilidade.

Fonte: Autor 2023
6. CONCLUSÃO
Na introdução deste trabalho, foi proposto um estudo de caso em condomínio residencial localizado na região metropolitana de Belo Horizonte – Minas Gerais no quesito acessibilidade. O tema escolhido relaciona a teoria na prática de uma das vertentes da Engenharia que é a Avaliações e Perícias. Foram abordados assuntos referentes ao desenho universal e acessibilidade especificamente na área comum do imóvel supracitado. Para tanto, desenvolveu-se um estudo teórico e prático acerca do tema. Ao assunto teórico foram colacionados entendimento de autores especialistas assim como a legislação pertinente ao foco do trabalho. Ao estudo prático foi desenvolvida a inspeção predial in loco com observação criteriosa das áreas comuns do condomínio. Observou-se que essas áreas não estão totalmente preparadas para atender todos que usufruem deste espaço pela falta de acessibilidade arquitetônica. Demonstrou-se que para um condomínio ser considerado acessível deve atender a todos os usuários das áreas comuns. O recurso fotográfico, favoreceu este estudo ampliando o entendimento dos efeitos produzidos pela falta de acessibilidade nos elementos que compõem a obra como um todo. As considerações feitas durante a inspeção predial não se limitam ao que foi exposto, podendo ser desdobradas em tantas outras especificações necessárias. Por fim, cumpre dizer que o propósito deste trabalho é de colaborar com o corpo acadêmico a outras pesquisas observando que este tema está obliquamente relacionado a tantas outras pessoas que não conseguem fazer uso de sua liberdade de locomoção com autonomia e segurança pela falta efetiva da aplicabilidade do desenho universal em congruência com a acessibilidade condominial ao fim a que se destina.
REFERÊNCIAS
ABNT, ASSOCIAÇÃO BRASILEIRA DE NORMAS TÉCNICAS. NBR NM 313: Elevadores de passageiros – Requisitos particulares para acessibilidade das pessoas, incluindo pessoas com deficiência. Rio de Janeiro, 2007.
ABNT, ASSOCIAÇÃO BRASILEIRA DE NORMAS TÉCNICAS. NBR 5674: Manutenção de edificações – Requisitos para sistema de gestão de manutenção. Rio de janeiro,2012.
ABNT, ASSOCIAÇÃO BRASILEIRA DE NORMAS TÉCNICAS. NBR 9050: Acessibilidade a edificações, mobiliário, espaços e equipamentos urbanos. Rio de Janeiro, 2020.
ABNT, ASSOCIAÇÃO BRASILEIRA DE NORMAS TÉCNICAS. NBR ISO 9386-1: Plataformas de elevação motorizadas para pessoas com mobilidade reduzida – Requisitos para segurança, dimensões e operação. Rio de Janeiro, 2013.
ABNT, ASSOCIAÇÃO BRASILEIRA DE NORMAS TÉCNICAS. NBR 13.752: perícias de engenharia na construção civil. Rio de Janeiro, 1996.
ABNT, ASSOCIAÇÃO BRASILEIRA DE NORMAS TÉCNICAS. NBR 15575-1: Edificações Habitacionais – Desempenho. Requisitos Gerais. Rio de Janeiro, 2013.
ABNT, ASSOCIAÇÃO BRASILEIRA DE NORMAS TÉCNICAS. NBR 16537: Acessibilidade – Sinalização tátil no piso – Diretrizes para elaboração de projetos e instalação. Rio de Janeiro, 2016.
BRASIL. Constituição da República Federativa do Brasil. Brasília: Senado, de 1988.
BRASIL. Decreto nº 7.612 de 17 de novembro de 2011 – Plano Nacional de Direitos da Pessoa com Deficiência – Plano Viver sem Limite. Brasília, 2011a. Disponível em: http://www.planalto.gov.br/ccivil_03/_ato2011-2014/2011/decreto/d7612.htm. Acesso em: 17 jan.2023.
BRASIL. Lei nº 10.098, de 19 de dezembro de 2000. Estabelece normas gerais e critérios básicos para a promoção da acessibilidade das pessoas portadoras de deficiência ou com mobilidade reduzida. Brasília: Presidência da República, Casa Civil, 2000.
BRASIL. Lei nº 10.436, de 24 de abril de 2002. Dispõe sobre a Língua Brasileira de Sinais – Libras e dá outras providências. Brasília: Presidência da República, Casa Civil. 2002a. Disponível em: http://www.planalto.gov.br/ccivil_03/leis/2002/l10436.htm. Acesso em: 17 jan.2023.
CARTILHA Inspeção Predial: Acessibilidade – 2ª Edição é uma publicação técnica da Câmara de Inspeção Predial do IBAPE/SP, em parceria com o CAU/SP – Conselho de Arquitetura e Urbanismo de São Paulo, 2016 / 2017.
DECRETO FEDERAL Nº 5.296: Dispõe sobre a adequação das edificações à acessibilidade das pessoas portadoras de deficiência ou com mobilidade reduzida. Rio de Janeiro, 2004.
DEUTSCH, Simone Feigelson. Perícias de engenharia: a apuração dos fatos– 4.ed. atual. e ampl. com comentários do CPC – São Paulo: Editora Leud, 2019.
GOMIDE, T. L. F.; NETO, J.C.P.F.; GULLO, M.A. Normas Técnicas para engenharia diagnóstica em edificações. – 2.ed.- São Paulo: Pini,2013.
IBAPE/SP – Instituto Brasileiro de Normas Técnicas – Norma de inspeção predial nacional. São Paulo,2012.
LEI FEDERAL Nº 13.146: Institui a Lei Brasileira de Inclusão da Pessoa com Deficiência. Rio de janeiro, 2015.
1 Avaliações e Perícias de Engenharia
Instituto de Pós-Graduação – IPOG Belo Horizonte, MG, 20 de janeiro de 2023
chrisescribas@gmail.com